联系人:王经理
销售电话:15610293837
销售QQ:2962700085
公司地址:山东省潍坊高新区新城街道玉清社区光电路155号潍坊高新区光电产业加速器(一期)1号楼301
PRODUCT CENTER
联系人:王经理
销售电话:15610293837
销售QQ:2962700085
公司地址:山东省潍坊高新区新城街道玉清社区光电路155号潍坊高新区光电产业加速器(一期)1号楼301
卡口堰水土流失监测设备又称卡口站水土流失自动监测系统,卡口堰水土流失监测设备由数据采集主控机、含沙量测量传感器、明渠流量传感器和降雨量传感器构成,可实现全天候无人值守,自动测量:径流量、径流含沙量、径流总量、累计雨量等参数,并将各传感器采集的泥沙含量、径流量和累计雨量数据实时上传至云平台,便于用户随时随地调取、分析与管理数据,为水土保持决策提供科学、精准的数据支撑。
一、卡口堰水土流失监测设备产品介绍
在径流场与小流域的水土流失监测工作中,传统人工测量流量和泥沙等数据存在工作量庞大、效率低下的问题,同时人力成本高数据误差大。水土流失自动监测系统历经多年技术攻关与大量实地试验验证,成功实现对传统人工监测模式的革新。
本系统由数据采集主控机、含沙量测量传感器、明渠流量传感器和降雨量传感器构成。其中,明渠流量传感器组件可自动测量径流流量,并通过控制器精准计算不同时间段的径流总量与瞬时径流数据;含沙量测量传感器依据径流变化特征,于径流垂直分布的泥沙测量口,实时采集径流含沙量数据;降雨量传感器则负责精准获取累计雨量数据。各传感器协同作业,所采集数据对水土流失分析具有关键价值。
系统将各传感器采集的泥沙含量、径流量和累计雨量数据实时上传至云平台,便于用户随时随地调取、分析与管理数据,为水土保持决策提供科学、精准的数据支撑。
泥沙含量传感器工作流程:地表水体由引水槽进入明渠或巴歇尔槽并经过明渠流量计获得瞬时径流量数据,并计算出单位时间内的径流总量,分水管采集到地表水体送入主水箱,当主水箱待测地表水容量足够进行检测时,系统启动并将待测地表水送入样品仓进行检测,传感器把收集到的数据送给处理器经处理后得到泥沙含量,得到数据后传感器把内部样品由排水管排出为下次采样做好准备。处理器通过485输出至外部设备。
二、卡口堰水土流失监测设备产品特点
1、全天候无人值守,自动测量:径流量、径流含沙量、径流总量、累计雨量。
2、太阳能供电和市电双供电,稳定可靠。全天候无人值守,自动测量数据。
3、抽水泵定时启停,长效耐用。
4、具有在计算机软件上在线实时监测、显示各测量参数动态过程及曲线、历史数据下载功能。
5、可现场在数据管理主控机上自由设置采样频率及调校时钟。
6、稳定性好,传感器自主研发精度高、稳定性强、抗环境干扰能力强。
三、卡口堰水土流失监测设备技术参数
| 径流流量测量 | |
| 分辨率 | 0.1m³/h |
| 测量精度 | 量程的1%~5%(取决于堰槽精度) |
| 盲区 | 30~50cm |
| 含沙量测量 | |
| 测量原理 | 称重方式 |
| 采样频率 | 1~99分钟 |
| 测量范围 | 0~500kg/m3; |
| 分辨率 | 0.01kg/m3 |
| 测量精度 | <10% |
| 雨量测量 | |
| 测量范围 | 0mm~4mm/min(允许通过最大雨强8mm/min) |
| 分辨率 | 0.2mm |
| 测量精度 | ≤±3%(室内人工降水以仪器自身排水量为准) |
| 一般指标 | |
| 水泵流量 | 750GPH |
| 通讯方式 | RS485 |
| 工作电源 | DC12V |
| 工作环境 | 温度:0(不结冰)~50℃;湿度:<95%(无凝露) |
| 工作寿命 | >1年 |
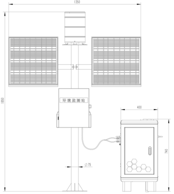
四、产品尺寸及工作示意图


五、维护和保养
初次使用前请先拧松运输固定杆,否则设备将无法正常工作。
初次使用或久置不用重新使用时,请重新进行清水校准和零点校准。
定期检查储水箱,如有污泥大量沉积或有杂物,请进行清除,可拆下排水阀并冲洗干净。
定期检查排水阀,样品桶进水阀,样品桶排水阀,水流流通是否通畅,如水流弱小或不通水,可取消排水阀上的控制线并拆卸下排水阀进行清洗,然后重新安装回去。
保持设备内部整洁,称重部分禁止物品堆积,样品桶下禁止放置物品。
设备所在区域温度低至零下时,请排空设备内部水分,放置结冰损坏设备。
传感器使用时间较长出现测量误差时,可通过配合仪器进行标定校正,当以上方式对传感器进行维护和保养仍不能进行标定和测量时,说明传感器已经损坏。
六、云平台介绍
物联云平台是基于物联网通信技术的数据接收、处理、分析平台,支持MQTT设备通信协议,支持HJ212-2017、HJ212-2005环保协议,支持TCP/IP短链接数据转发,支持HTTP协议数据转发,支持实时、历史数据查询及分析,支持时间序列数据的波形图显示,支持数据聚合,支持实时视频接入,支持设备地图等。
WX-CSQX12超声波智能生态气象站,作为现代环境监测技术的集大成者,凭借其高精度、非接触式测量原理,在环境监测领域大放异彩。所谓“四气两尘”,即指监测空气中的四种主要气体污染物(如CO、NO2、SO2、O3)以及两种颗粒物(PM2.5和PM10),这些污染物是影响空气质量的关键因素,也是环境保护工作的重点对象。···
这款WX-BXQX5便携式海洋气象仪采用了先进的微型化技术和智能化设计,体积小巧、轻便易携,非常适合在船舶、游艇、甚至是无人潜水器等平台上使用。它集成了多种气象传感器,能够实时监测风速、风向、温度、湿度、气压等关键气象参数,并通过无线传输技术将数据实时上传至云端或移动设备,方便用户随时掌握海洋气象动态。···
WX-SDN1隧道能见度检测器依据透射原理开展工作,这种原理赋予了它独特的检测能力。它的发射/接收器和反射器相对安装,就如同搭建了一个精准的“视觉通道”。发射器发出特定形式的光信号,这些光信号在隧道这个特定的空间里穿梭,当遇到空气中的颗粒、水汽等影响能见度的因素时,光的传播会发生相应变化。反射器则负责接收经过空间传播后回来的光信号,通过分析发射与接收光信号之间的差异,就能敏锐地感知到隧道内能见度的状况。···
WX-SQ13消防应急款手持气象站最突出的优势在于其极致的便携性和便捷性。对于需要快速机动的消防救援而言,沉重复杂的设备往往难以适配多变的救援场景。这款手持设备体积小巧,可单手携带,无需复杂的准备流程,开箱即可投入使用,完美契合了消防救援分秒必争的核心需求,让气象监测能够无缝融入紧张的救援节奏中,不耽误任何关键救援时间。···
WX-SQ17应急管理手持气象仪器,通过集成高精度传感器、智能算法与云计算技术,实现了对温度、湿度、气压、风速风向、降雨量等关键气象参数的即时监测与分析。无论是户外探险者、应急救援队,还是城市管理者,都能轻松掌握即时天气信息,为决策提供有力支撑。别看它小巧玲珑,却蕴含着巨大的能量。应急管理手持气象仪器采用轻量化材料与紧凑设计,不仅佩戴舒适,更可轻松放入口袋或背包,实现了真正的“随身气象站”。···
水流表面平静如镜,水下却可能暗流涌动。某次监测中,WX-QSZ06取水水质在线监测系统捕捉到溶解氧浓度在凌晨3点突然下降,这一异常信号立即引发关注。经排查发现,是上游工业废水偷排导致水体缺氧。若非在线监测的持续守护,这场生态危机可能酿成更大灾难。系统不仅能识别显性污染,更能通过数据模型预测潜在风险,如同给水源装上"X光眼",让隐患无处遁形。···